当前位置 :主页 / 米兰平台-米兰(中国) / 厂房净化 / 正文
高效过滤送风口也就高效送风口,一般采用最新技术设计,使气流分布更加合理、箱体结构简单可靠,外壳采用宝钢冷轧钢板制作,表面经喷塑或烤漆处理,防酸防腐蚀,含静压箱,散流板,高效过滤器,与风管的接口可以为顶接或侧接。送风口均有良好的气流组织,达到洁净区减少死区的目的,保证了净化效果,是用作新建或改造千级至三十万级别的洁净室的终端过滤装置,是满足净化要求的关键设备。
高效送风口应用:
1.彩钢板结构及铝合金龙骨的洁净室。
2.因洁净室的高度受土建高度的限制,而必须采用紧凑型设计方式的洁净室。
3.部分局部净化设备。
高效送风口特点:
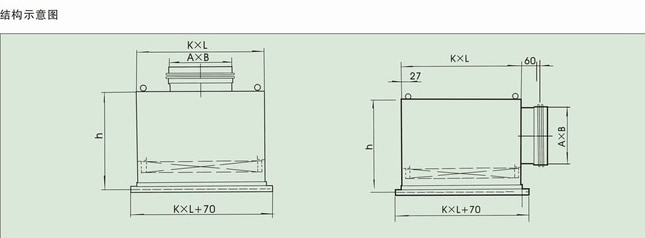
1.系列高效送风口外壳箱体采用宝钢优质冷轧钢板制作,外表面静电喷塑处理或烤漆处理,配有散流板。
2.高效送风口可作为终端高效过滤装置直接安装在洁净室顶棚处 ,结构紧凑,密封性能可靠,进风方式有侧进风和顶进风,法兰口有方形和圆形两种结构。
3.有时洁净室由于受到土建高度限制或必须采用紧凑型设计时,可选用一体化高效过滤器送风口。
4.重量轻、安装更方便,尤其适合安装于彩钢板结构及铝合金龙骨的洁净室中。
5.可根据用户要求加装调节阀和保温层。
高效送风口型号及技术参数:
|
型 号
顶端风(侧送风) |
额定风量 (m3/h) |
高效过滤尺寸mm (宽×高×深) |
外形尺寸mm (宽×高×深) |
吊顶开口尺寸mm | 进风管尺寸mm |
| GKF-5IA(5IIA) | 500 | 320×320×220 | 370×370×500 | 380×380 | 200×200 |
| GKF-7IA(7IIA) | 700 | 484×484×150 | 534×534×500 | 545×545 | 320×200 |
| GKF-10IA(10IIA) | 1000 | 484×484×220 | 534×534×500 | 545×545 | 320×200 |
| GKF-10IB(10IIB) | 1000 | 610×610×150 | 660×660×500 | 670×670 | 320250 |
| GKF-12IA(12IIA) | 1200 | 820×600×150 | 870×650×500 | 880×660 | 320×250 |
| GKF-15IA(15IIA) | 1500 | 726×484×220 | 776×534×500 | 786×545 | 400×200 |
| GKF-15IB(15IIB) | 1500 | 630×630×220 | 680×680×500 | 690×690 | 320×250 |
| GKF-15IC(15IIC) | 1500 | 915×610×150 | 965×660×500 | 975×670 | 500×250 |
| GKF-20IA(20IIA) | 2000 | 968×484×220 | 1080×534×500 | 1030×545 | 500×200 |
| GKF-20IB(20IIB) | 2000 | 1220×610×150 | 1270×660×500 | 1280×670 | 630×250 |
| GKF-22IA(22IIA) | 2200 | 945×630×220 | 995×680×500 | 1005×690 | 500×250 |
| GKF-30IA(30IIA) | 3000 | 1260×630×220 | 1310×680×500 | 1320×690 | 630×250 |
一体化高效送风口特点:
1.广泛使用于10万级到10级的洁净室内,应用于药厂、生物技术、食品饮料厂、微电子行业、半导体行业、光学实验室。
2.HEPA BOX系列很方便地安装在T形龙骨中(不需要额外的压紧装置),并可方便的与风管(直径10"或者12")相连接。
3.HEPA BOX系列由专用挤铝型材边框以及接口一次成型的铝板制作而成,进风口内侧安装散流板,并在过滤器出风面装有过滤器保护网。强度好、高度低、重量轻,方便搬运和安装。
一体化高效送风口型号及参数:
|
风量m3/h
|
初阻力和过滤效率
|
配套过滤器尺寸(mm)
|
箱体外形尺寸(mm)
|
|||
|
HEPA
|
ULPA
|
Ⅰ型
|
Ⅱ型
|
Ⅲ型
|
||
|
1000
|
220Pa99.99%@0.3μm
|
250Pa99.9995%@0.12μm
|
600×600×150
|
565×565×91(液槽)
|
530×530×80
|
600×600
|
|
1500
|
915×600×150
|
880×565×91(液槽)
|
845×530×80
|
915×600
|
||
|
2000
|
1210×600×150
|
1175×565×91(液槽)
|
1140×530×80
|
1210×600
|
||
高效送风口-高效过滤送风口链接地址: